⇒
リーガルタワー船場 3LDK 68.19㎡のパノラマ室内画像。まるでお部屋にいるかのような臨場感をお楽しみ下さい。
リーガルタワー船場の基本情報
【リーガルタワー船場の住所】
大阪市中央区南久宝寺町2丁目4-7
【リーガルタワー船場の交通アクセス】
大阪メトロ中央線「堺筋本町」駅徒歩4分
大阪メトロ堺筋線「堺筋本町」駅徒歩4分
大阪メトロ御堂筋線「本町」駅徒歩8分
大阪メトロ中央線「本町」駅徒歩8分
大阪メトロ四つ橋線「本町」駅徒歩13分
大阪メトロ御堂筋線「心斎橋」駅徒歩10分
大阪メトロ長堀鶴見緑地線「心斎橋」駅徒歩10分
【リーガルタワー船場の建物構造】
鉄筋コンクリート造地上20階建 総戸数85戸
【リーガルタワー船場の建物設備】
エレベーター、応接セット(エントランスホール)
【リーガルタワー船場のセキュリティ】
オートロック、TVモニター付きインターホン、モニター付きエレベーター、防犯カメラ、ディンブルキー、上下2ロックシステム
【リーガルタワー船場の室内主要設備】
シューズボックス、センサーライト、フローリング、ウォシュレット、独立洗面台(シャンプードレッサー)、浴室乾燥機、浴室追焚機能、クローゼット、システムキッチン、床暖房
※設備は部屋ごとに異なる場合があります。必ず現地をご確認下さい。
リーガルタワー船場 3LDK 68.19㎡の間取図、パノラマ写真について
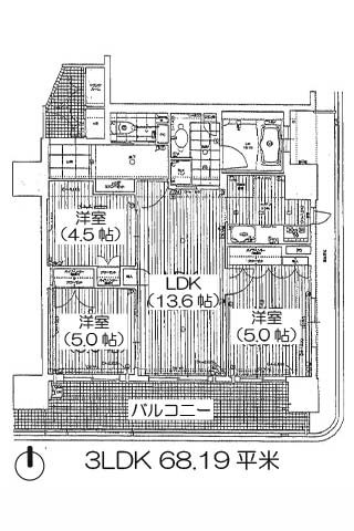
【リーガルタワー船場 3LDK 68.19㎡の間取図】

【リーガルタワー船場 3LDK 68.19㎡のパノラマ室内写真】
リーガルタワー船場 3LDK 68.19㎡の玄関
リーガルタワー船場 3LDK 68.19㎡の玄関
リーガルタワー船場 3LDK 68.19㎡のトイレ
リーガルタワー船場 3LDK 68.19㎡の洗面所
リーガルタワー船場 3LDK 68.19㎡のバスルーム
リーガルタワー船場 3LDK 68.19㎡のキッチン
リーガルタワー船場 3LDK 68.19㎡の洋室
リーガルタワー船場 3LDK 68.19㎡の洋室
リーガルタワー船場 3LDK 68.19㎡の洋室
リーガルタワー船場 3LDK 68.19㎡のバルコニー
リーガルタワー船場をお得に借りるには
【最大仲介手数料無料のバッカス不動産がオススメ】

大阪市中央区、ビジネス街である淀屋橋、肥後橋駅からともに歩いて約3分。
バッカス不動産はリーガルタワー船場 3LDK 68.19㎡をはじめ大阪都心六区(北区/中央区/福島区/西区/浪速区/天王寺区)のお部屋は全て最大仲介手数料無料で取扱可能です。
つまりお部屋を借りるときに家賃の1月分かかる仲介手数料が最大無料。大きいですよね。
SUUMO、HOMESなどの掲載物件ももちろん全て取扱可能。お気軽にお問い合わせ下さい。
※最大仲介手数料無料は個人の方のみのサービスです。法人様の場合は、成約時に賃料の1ヶ月分と消費税を申し受けます。
※貸主側から正規の手数料が頂けない物件は、差額分を仲介手数料として申し受けます。
※営業エリアは北区/中央区/福島区/西区/浪速区/天王寺区限定とさせていただきます。
※完全予約制の不動産会社です。
※水商売、無職の方は審査通過のノウハウがないためバッカス不動産をオススメしません。
【最大仲介手数料無料のバッカス不動産の口コミ評判】
バッカス不動産ならお部屋だけでなくカフェやスーパー、公園など地域情報もまとめてご紹介。


